De gemeente Doetinchem wil het bedrijventerrein Akkermansweide kunnen uitbreiden tot ca. 75 meter voor Sluis de Pol. Om dat te bereiken heeft de gemeente voor zichzelf een voorlopig voorkeursrecht gevestigd op de aankoop van deze gronden. Op 29 januari 2026 beslist de gemeenteraad naar verwachting over een definitief voorkeursrecht voor de gemeente. Het is de komende weken voor belanghebbenden mogelijk om een zienswijze of bezwaar in te dienen.
Gemeente: ‘meer plek voor bedrijven‘
“Er zijn veel bedrijven die zoeken naar een plek zich te vestigen op een bedrijventerrein in de gemeente Doetinchem of specifiek in Gaanderen.”, verklaart de gemeente in haar persbericht van 20 november 2025. “Dat komt bijvoorbeeld omdat zij zich op hun huidige plek niet meer verder kunnen ontwikkelen. Gemeente Doetinchem is daarom op zoek naar ruimte voor bedrijven om te kunnen uitbreiden. Dat geldt ook voor bedrijventerrein Akkermansweide in Gaanderen. Op deze manier kan de lokale economie zich goed blijven ontwikkelen.”


‘Aansluitende gronden’ is vrijwel hele gebied tot vlak voor de sluis
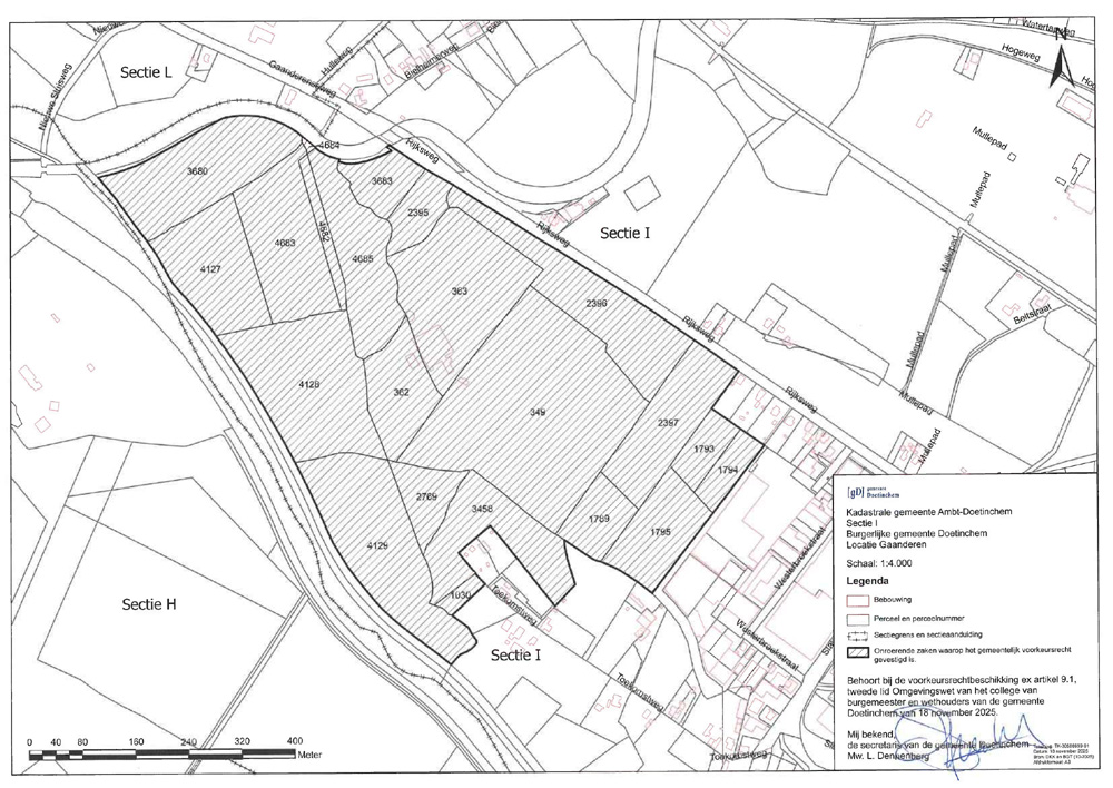
De gemeente: “Om de uitbreiding in de toekomst mogelijk te maken, heeft het college van Burgemeester en Wethouders van de gemeente Doetinchem een voorlopig voorkeursrecht gevestigd op de gronden aansluitend aan bedrijventerrein Akkermansweide (zie kaartje).” Op het zwart witte kaartje dat de gemeente heeft bijgevoegd blijkt dat het gaat om grotendeels het, nu groene, gebied tussen de Rijksweg/Gaanderenseweg, de Oude IJssel en de Bielemansbeek, dat de gemeente tot bedrijventerrein wil kunnen omvormen, met uizondering van het eerste deel achter de Toekomstweg.
Na aankoop grond worden omwonenden en bedrijven betrokken bij plannen
Met het voorkeursrecht krijgt de gemeente als eerste de kans om de gronden aan te kopen zodra de eigenaar deze wil verkopen. Bedrijven en omwonenden worden ná de eventuele aankoop van de gronden betrokken bij het maken van verdere plannen.
Besluit Definitief voorkeursrecht 29 januari 2026
De gemeenteraad beslist naar verwachting op 29 januari 2026 over een definitief voorkeursrecht, wat de weg verder vrij zou maken om van het groene gebied een bedrijventerrein te maken.
Geplaatst 20-11-2025 16.45 uur Update 21-11-2025 11.04 uur.
©Astrid van Beveren
